A room should never allow the eye to settle in one place. It should smile at you and create fantasy.
— Juan Montoya
Bath & Body Works
Liverpool One - Liverpool, England
One of the first Gingham+ design type stores in the UK, this location featured a unique exterior storefront that required adapting interior‑mall brand standards for an outward‑facing design.
Schematic
Ideation
Developed a 3D model in SketchUp for design review, followed by high-quality visualizations in Enscape, and further refined the imagery using Pencil AI to achieve a more photorealistic representation.

Galerias La Casona, El Salvador
Built within a mall centered around a preserved historic mansion, this project required a sensitive balance between preservation and modern retail design. By combining innovative planning with meticulous construction techniques, the store was completed and opened successfully in Spring 2025.
The Galeries, Sydney, Australia
This store departs from standard design guidelines, embracing a distinctly custom approach. Given its high-visibility location, the layout prioritizes openness, with custom designed perimeter cabinetry defining the space. A gingham tile pattern wraps from the secondary façade through to the back wall, visually linking the storefront to the interior and creating a cohesive, immersive experience. The custom demonstration sink is strategically oriented toward windows facing the main road, introducing a sense of activity and engagement for both passing pedestrians and vehicular traffic.
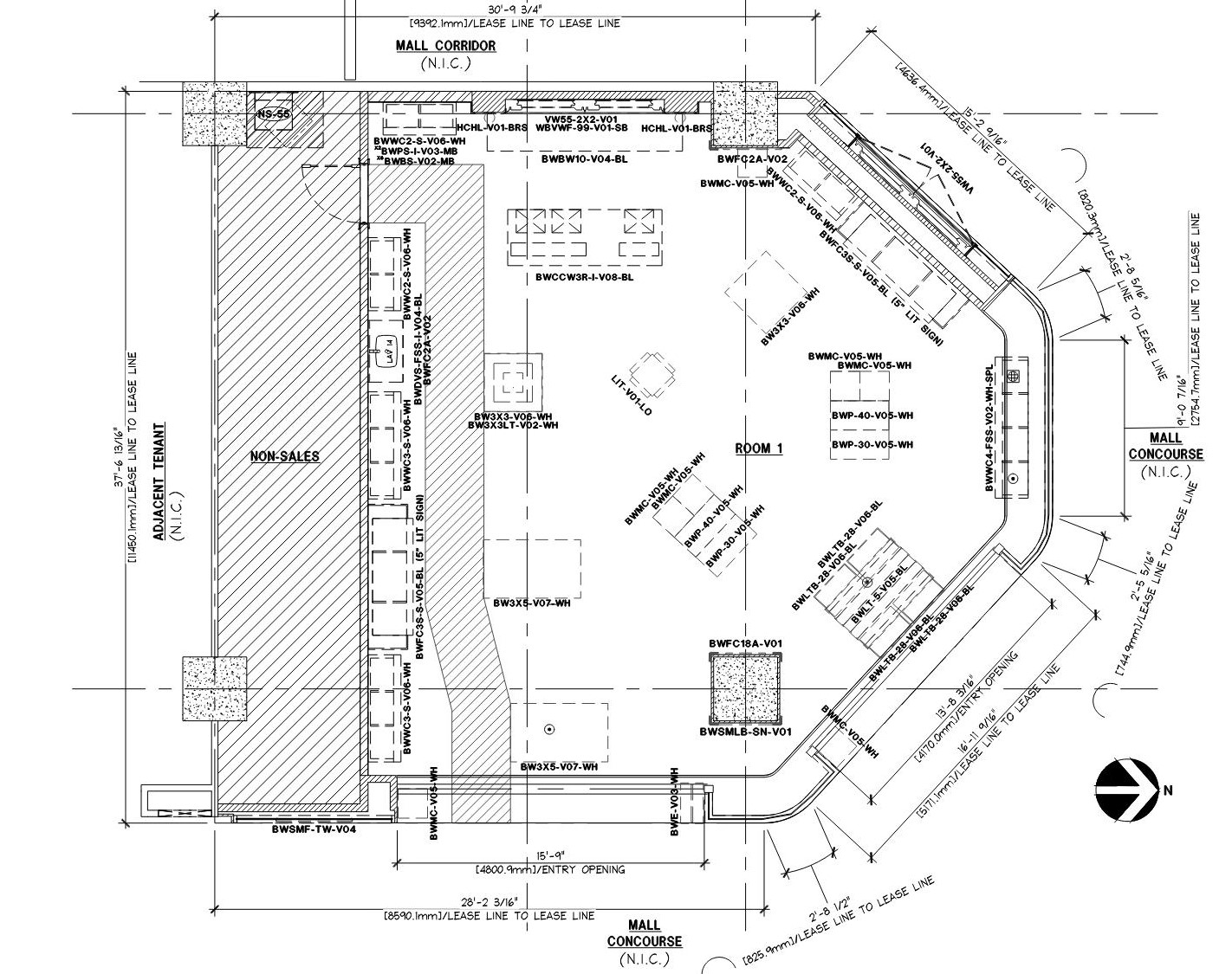
One Bangkok - Bangkok, Thailand
Occupying a corner location in the mall, the store presented unique design opportunities with several storefront façades that curve in harmony with the mall’s architecture
Jake's Toggery
Interiors & Storefronts
Cincinnati & Columbus, OH, USA
This Ohio retailer, poised for growth, aimed to make a strong brand statement. Collaborating with the owners, I developed their store brand standards, incorporating space planning, fixture and ceiling design, storefront design, material and finish specification, décor sourcing, and custom graphics.
Yelton Jewelers
Interiors
West Chester, OH, USA
At Yelton Jewelers, I helped shape two distinct retail environments: Club 925, focused on silver collections, and a refined display space for rotating luxury assortments. My contribution included space planning, fixture design, material and finish specification, décor sourcing, and the development of custom graphics including wallcoverings and signage, to support a cohesive brand experience.
Mr. Seafood
Interior & Graphics
Various locations in South Carolina
With plans to expand into franchising, this restaurateur needed a strong, recognizable brand presence. In collaboration with the owner and supported by my project management partners, I crafted a lively and distinctive brand‑standard design package. My contributions included space planning, material and finish specification, furniture and décor sourcing, custom graphics and wallcovering design, and the creation of comprehensive logo and branding guidelines to advance Mr. Seafood’s growth strategy.
Xavier University
Interior Graphics & Mobile Photo-Op Frame
Cincinnati, OH, USA
Comprehensive experience spanning concept ideation, schematic engineering, graphic and elevation layouts, print‑ready production setup, material specification, and end‑to‑end installation coordination.
Unreal Candy
Freestanding Display
Whole Foods
Concept ideation, schematic development, graphic layouts, and material specification.

Big Kat Buggy
Freestanding Display
Dick's Sporting Goods
Concept ideation, schematic development, graphic layouts, and material specification.




































































